CARAFFA

FORT ST.ANGELO

BIRGU MENQA

GRAND HARBOUR MARINA

ST.ANGELO MANSIONS


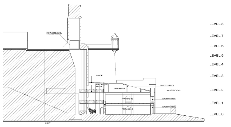
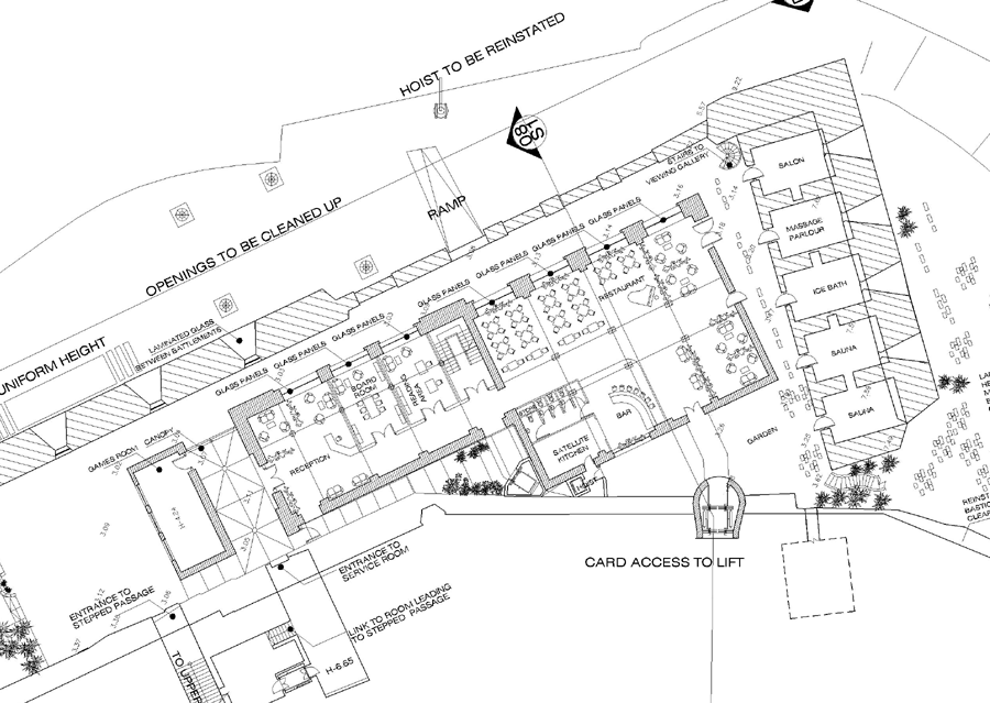
Fort St. Angelo > Marina Residency Club > Architectural Plans

History
Photo Gallery

Click on the images below to enlarge the plans